The Field Room

UBCO Innovation

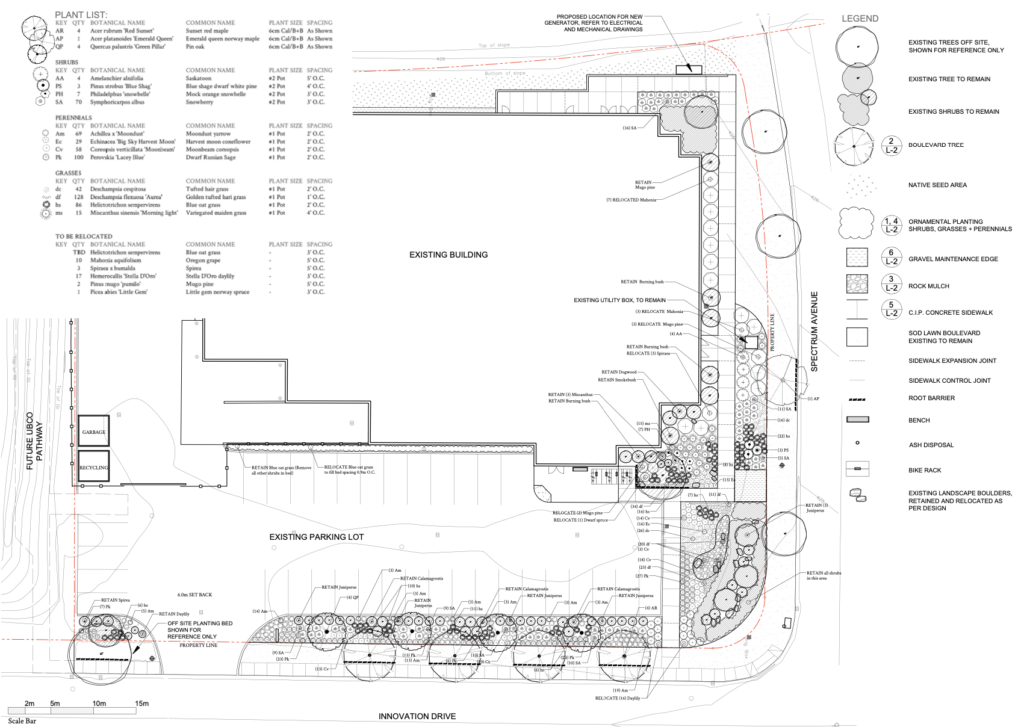
The UBCO Innovation Building, located within the industrial precinct of the Okanagan campus, required a comprehensive landscape renovation to meet updated campus design expectations and align with the broader UBC and UBCO Master Plan directives.

The existing site conditions no longer reflected the university’s contemporary design vision or sustainability commitments. The project focused on reviving, adapting, and enhancing the landscape to create a more cohesive, functional, and visually integrated environment.

Development: UBC Properties Trust
Project Management: Sawchuk Developments
Landscape Contractor: United Landscapes